本文へスキップ

関西の田舎暮らし古民家専門の不動産「白野産業グループ」

電話でのお問い合わせはフリーダイヤル0120-463-417

〒543-0031 大阪府大阪市天王寺区石ヶ辻町17-17

物件詳細detail

兵庫県宍粟市千種町 (物件No.38101)

土蔵離家付旧家・・生活至便、温泉近

今回、兵庫県宍粟市の清流千草川の近くの旧千草町の中心部にある土蔵離家付きの邸宅を販売します。

小中高校、銀行、スーパー郵便局、病院、歯科医院等が徒歩15分圏内に全て揃っているので老後も安心です。
温泉へも歩いて行けます。

295坪のゆったりした宅地の中には母屋、離家、土蔵があり立派な巨石造りの庭園もあります。

建物は地元産の材料を使用した旧家で大がかりなリフォームなしで入居可能です。
是非一度現地を御見学下さい。

物件写真


外観


外観


外観


庭園


玄関


広縁


和室


洋室


台所


浴室


トイレ


トイレ


診療所、温泉、ふれあいサロン


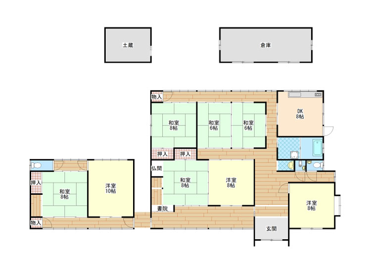
 間取り図
サムネイルをクリックで拡大
全景


物件概要

価格 価格 790万円 接道状況 敷地の東側に
幅員8mの公道約33m接している
所在地 兵庫県宍粟市千種町 設備 関西電力、LPガス
公営水道、本下水
アクセス 中国自動車道
『山崎』IC 約27.4km
鳥取自動車道
『大原』IC 約19.5km
智頭急行智頭線
『石井』駅 約24.8km
用途 指定なし
間取り 8DK 都市計画 都市計画区域外
土地 総面積 977.13u
   (約295坪)
地目 宅地
地勢 平坦地
制限法令 なし
建物 木造瓦葺平家建
175.56u (約53坪)
昭和49年築
他付属建物有
取引態様 仲介
仲介手数料 326,700円
固定資産税 91832円    

周辺施設
こども園 ちくさ杉の子こども園
約443m
郵便局 千種郵便局
約292m 
小学校 千種小学校
約225m
JA JAハリマ千種支所
約480m
中学校 千種中学校
約1.3km
病院 千草診療所
約660m
役所 宍粟市千草市民局
約320m
スーパー フードストアーおくだ
約630m